Os purlinos de aço são componentes secundários de carga no sistema de estrutura do telhado, que transferem cargas de teto para a estrutura de aço. Os purlinos de aço do tipo C/Z são componentes importantes para edifícios de estrutura de aço.
Os purlinos de aço são componentes secundários de carga no sistema de estrutura do telhado, que transferem cargas de teto para a estrutura de aço. A função dos purlins de aço do tipo C/Z é reduzir o intervalo do painel do telhado e consertá -lo.



Os purlinos de aço do tipo C/Z são componentes importantes para edifícios de estrutura de aço, mas diferenças como forma, resistência e aplicabilidade entre os dois purlins são óbvias, portanto, em aplicações práticas, o tipo apropriado de purlin deve ser selecionado com base em requisitos específicos de engenharia.
Os purlins de aço do tipo C/Z têm seus próprios faixas aplicáveis. Os purlinos do tipo Z têm maior resistência e estabilidade, que são comumente usadas nos complexos projetos de engenharia. Em termos de força, os purlinos do tipo Z têm resistência à flexão e torção mais forte, tornando-os mais usados em estruturas de grande escala ou de serviço pesado. Por exemplo, em plantas industriais e grandes armazéns, os purlinos do tipo Z são frequentemente selecionados para apoiar telhados e outras instalações. Os purlinos do tipo C são mais adequados para vãos curtos e cargas leves e são comumente usadas em pequenos edifícios ou treliças leves do telhado. Portanto, os purlinos do tipo C são amplamente utilizados em alguns edifícios relativamente simples, como os armazéns simples.


Diferentes alturas de seção transversal e espessuras dos purlins de aço do tipo C/Z são adequados para diferentes requisitos de carga e design.
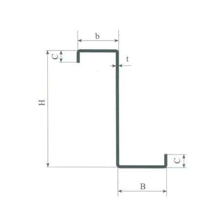
O diagrama de seção de Purlin do tipo C/Z é o seguinte:

A especificação ″ c250x80x30x3 ″ significa seção altura H = 250mm, largura da seção b = 80mm, largura da costura a = 30 mm, espessura t = 3mm.
A especificação ″ z160x61x20x3 ″ significa seção altura H = 160mm, largura da seção b = 61 mm, largura da costura a = 20 mm, espessura t = 3mm.